未来学生 · 未来教职工
新闻转载
首页 > 新闻中心 > 新闻转载

华东师范大学第二附属中学前滩学校及冰厂田前滩幼儿园 / 致正建筑工作室+大正建筑事务所

上传者: 华二前滩 日期:2021-04-28 13:57:12 所属类别:新闻转载 浏览量:6986

转载自gooood谷德设计网



图片

局部鸟瞰 ©陈颢

感谢 致正建筑工作室+大正建筑事务所 对gooood的分享

九年一贯制中小学和幼儿园相结合的前滩学校位于上海前滩国际商务区西南部的滨江国际社区中,东北角隔河与前滩中心区相望,西、北两侧与社区相接,并可远眺黄浦江。前滩区域作为后世博时代重点开发区域,已然成为补充陆家嘴中央商务区功能的第二商务载体。整个社区的规划结构为高效、便捷、宜人的小街坊模式,而学校地块虽然较大,但是接近1.5的容积率使其必定成为一个高密度的校园。由此,前滩学校的设计在宏观上需要有效回应城市公共环境,而在微观上则要基于水平与垂直两个方向上空间复合的诉求,形成空间组织高效、交往交流便利的校园环境。在功能复合中挤压出的高效、有趣的公共交流空间正是前滩学校空间体验中最关键的感知点,也形成了整个校园的功能架构支撑和核心设计理念。

▼项目鸟瞰 ©陈颢

图片

▼廊道和庭院分析图 ©致正建筑工作室,大正建筑事务所

图片


根据周边城市空间关系及日照控制条件,运动场地位于校园西南部,整个校园由南至北分为幼儿部、小学部、综合教学部、初中部和文体部五个相对清晰的功能区域。幼儿部单独在南侧设出入口,而中小学部的主入口则设在东侧道路上。设计的挑战在于如何在满足各部分功能及流线合理性的前提下,创造不同功能区域间使用上的复合与共享。而前滩学校大大高于上海地区学校标准0.8容积率的超高空间密度恰恰为我们的设计策略创造了条件,促使我们用“台”与“庭”两种空间类型来定义这一复合的校园空间。


▼整体鸟瞰,项目包括幼儿部、小学部、综合教学部、初中部和文体部五部分 ©陈颢

图片

▼局部鸟瞰 ©陈颢

图片


位于学校二层的面向运动场的 “L”字形阶梯平台将小学部、综合教学部、初中部和文体部从流线上有效地串联起来,并形成环绕操场观看体育活动的空中看台,使建筑内外的场景产生了互动,师生们漫步在这个空中开放空间中,可以环绕操场、眺望江景。同时,这一空中平台系统上部复合了同样面向运动场的图书馆和体育馆这样的开放性公共使用空间,与空中平台一起形成了学校面向社区的最公共的开放界面与认知形象,以开阔的形态回馈城市,建立起校园环境和城市环境的过渡转化关系。而在校园东北角这一布置了变电所的空间消极的末端,我们利用变电所的屋顶与二层食堂世界联通,形成了类似校园后花园的眺望河景和对岸前滩中心区的景观平台,并与大尺度城市外部空间发生关联。

▼面向操场的阶梯平台 ©陈颢

图片


图片


▼操场和室外空间 ©CreatAR

图片


图片


图片


▼公共平台 ©陈颢

图片


图片


▼学生在平台上活动 ©CreatAR

图片


图片


▼可以眺望操场的露台 ©陈颢

图片



在用平台系统创造了校园的整体公共性的同时,我们用室内、室外不同类型的“庭”来定义各个功能区域内部的公共性。综合楼居中串联中小学部的整个教学区由南北两个分属小学部和初中部的室外庭院来形成其合院式的内向空间格局,提供学生课间活动的向心与便利。而分布于综合楼、图书馆和文体楼内的四个不同特征的室内中庭,则为这两个空间密度最高的区域带来了明亮宜人的内部空间核心。

▼中学部的庭院 ©CreatAR

图片

综合楼的中庭特别狭长,顶部的高侧窗可以使两侧的专业教室得到自然采光的补充。斜向交叉的楼梯,打破了回型走廊的传统单调体验,通过创造出空间的戏剧性引起学生对自由跨层的空间兴趣。

▼综合楼中庭,空间狭长 ©CreatAR

图片


▼斜向交叉的楼梯 ©CreatAR

图片


而综合楼东端利用地形不规则限制形成的边中庭,既是建筑与城市沟通的场所,其内部螺旋上升的阶梯状的空间不仅串联了不同楼层的多种功能,也为密集的专业教室组群提供了自主的活动和休息场所。

▼综合楼边庭 ©陈颢

图片



位于综合楼西端三、四层之间联系图书馆上下空间的大台阶边中庭既如同一个多功能的开放集会空间,又为学校的公共界面创造了一个重要的活力核心。


▼图书馆大台阶中庭 ©上:CreatAR,下:陈颢

图片


图片


文体楼中部的贯穿中庭通过一个螺旋上升的公共楼梯,线性串联了四大核心功能,有效解决了游泳馆、篮球馆、乒乓球馆、剧场、食堂等大体量垂直向复合空间的交通组织。中庭上方锯齿状的北向天窗,中庭内部迂回转折的上下路径,有张有弛、光影变幻,营造出文体楼所具有的外向简洁、内向分形的空间氛围。

▼文体楼中庭,螺旋上升的公共楼梯 ©CreatAR

图片


▼文体楼中庭天窗 ©陈颢

图片


前滩学校由于高密度的功能与空间复合性,在关键部位运用特殊的结构技术来支撑其空间复合的实现。比如,围绕运动场的平台系统采用特殊的斜柱结构来形成其上部体量的悬浮感与平台的开放性。文体楼西侧的体育部分,由于将游泳馆、篮球馆和兵乓馆三个大跨空间上下叠合,采用了较为复杂的钢结构。特别是顶层的乒乓馆,其实是利用放大的篮球馆屋顶桁架之间的空间而形成的,同时为了给篮球馆提供自然采光,还预留了两个贯穿乒乓馆的巨大天窗采光井。

▼游泳馆 ©CreatAR

图片


▼篮球场 ©CreatAR

图片


▼复杂的钢结构 ©陈颢

图片


图片


▼乒乓球馆,利用放大的篮球场顶部钢桁架结构 ©陈颢

图片


▼礼堂 ©陈颢

图片


幼儿部由于需要独立运营,地上部分与中小学部完全分离,但是通过地下车库连成一体。同时,幼儿部在二三层西端将多功能厅和办公部分组合成一个带有双层通高阳台的悬挑体量,延续了这一面向运动场和社区的公共界面。呼应南侧的退台处理,幼儿部在室内围绕一个尺度宜人的小中庭来组织空间,一部盘旋在中庭内的开放楼梯将各个楼层连成一体,并且在底层扩大为一个室内小型开放剧场。

▼幼儿园外观,独立运营 ©CreatAR

图片


▼幼儿园中的露台 ©CreatAR

图片


图片


▼幼儿园中庭 ©CreatAR

图片


▼幼儿园室内空间 ©CreatAR

图片


图片


校园整体以统一的白色基调和简洁体量形成富有辨识度的统一形态,但在重点部位会以特殊材质表达其空间意图。比如围绕运动场的悬浮在空中的数个透明界面的盒体,由铜色竖直遮阳板所包裹的居中横贯的综合楼体量,以及文体楼西、北两侧面对城市的界面上由玻璃和铜色穿孔板所组成的错动咬合的突出体量。室内空间延续了白色为主的明快背景,但是所有中庭中的台阶楼梯等代表流线的体量全部由温暖宜人的木色饰面构成,强化了公共流线的赋形特征。同时,体育馆和礼堂大量运用木质吸音板作为室内界面,营造了特殊大空间的亲切感。

▼夜景 ©陈灏

图片



项目图纸


▼总平面图 ©致正建筑工作室,大正建筑事务所

图片


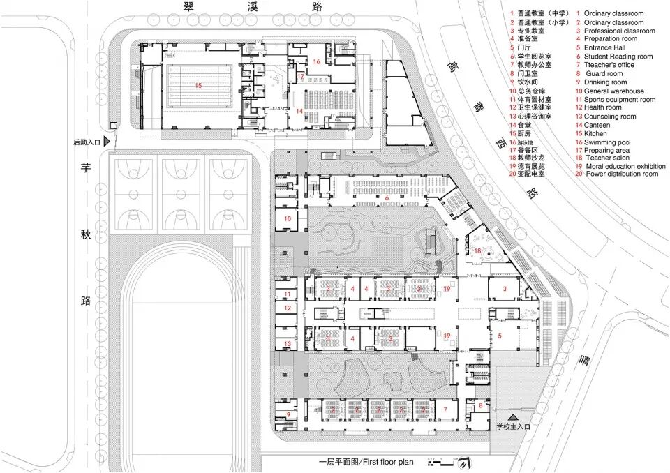
▼学校一层平面图 ©致正建筑工作室,大正建筑事务所

图片


项目名称:华东师范大学第二附属中学前滩学校及冰厂田前滩幼儿园

建筑师:周蔚+张斌/致正建筑工作室,李硕+李佳/大正建筑事务所

主持建筑师:张斌、李硕

项目建筑师:袁怡(方案+扩初+施工图),李乐(方案+扩初+室内方案),王佳琦(施工图+施工配合/室内设计+景观设计)

设计团队:安炳详、樊明明、涂单单、刘志远、王梓瑜、陈依然

合作设计:上海浦东建筑设计研究院有限公司

建设地点:上海市浦东新区前滩地区55地块晴雪路、春眺路

建设单位:上海前滩国际商务区投资(集团)有限公司

施工单位:舜杰建设(集团)有限公司

设计时间:2015.10-2016.10

建造时间:2016.11-2019.01

基地面积:学校28585㎡,幼儿园5253㎡

占地面积:学校9710㎡,幼儿园1945㎡

建筑面积:学校54178㎡,幼儿园5668㎡

结构形式:钢筋混凝土框架,局部钢结构

建筑层数:学校4层/5层,幼儿园3层

主要用途:25班小学,20班初中及10班幼儿园

主要用材:涂料,穿孔铝板,烤漆铝板,铝型材,铝镁锰板,平板玻璃

工程造价:3亿元人民币

摄影师:陈颢、CreatAR


地址:上海市浦东新区晴雪路28号
电话:58809203(学校总机) 58800061(教师招聘) 58800065(教师招聘)
邮箱:hsefzqt@hsefzqt.com
邮编:200124
交通:地铁6、8、11号线东方体育中心站